<i>Comercial</i>
<i>Comercial</i>
  • © 2022 Develop Arquitectos 0

Comercial

Arquitectura + Construcción
Proyectos Comerciales
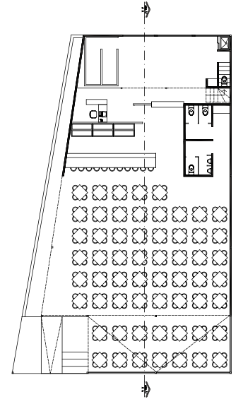
MoliBai

Localización
Lugar
Tipo
Año
Estatus
Alcance
Dimensión

Zapopan, Jalisco, Mexico
Av. Patria #725l
Restaurant Bar
2016
Construido
Proyecto Arquitectonico, Interiorismo, Obra
420 m2

Alt image
Stacks Image 279
Stacks Image 283
Stacks Image 285
Cocos Locos Rio Nilo

Localización
Lugar
Tipo
Año
Estatus
Alcance
Dimensión

Tlaquepaque, Jalisco, Mexico
Av. Patria #850 (Rio Nilo)
Restaurant Bar
2016
Construido
Proyecto Arquitectonico, Interiorismo, Obra
335 m2

Alt image
Stacks Image 244
Stacks Image 250
Stacks Image 252
Cocos Locos San Isidro

Localización
Lugar
Tipo
Año
Estatus
Alcance
Dimensión

Zapopan, Jalisco, Mexico
Plaza San Isidro Local exterior
Restaurant Bar
2017
Construido
Proyecto Arquitectonico, Interiorismo, Obra
420 m2

Alt image
Stacks Image 209
Alt image
Stacks Image 217
Stacks Image 215
Stacks Image 213
Vancouver Wings Jardín Real

Localización
Lugar
Tipo
Año
Estatus
Alcance
Dimensión

Zapopan, Jalisco, Mexico
Avenida del Valle #1784
Restaurant Bar
2017
Construido
Proyecto Arquitectonico, Interiorismo, Obra
190 m2

Alt image
Stacks Image 174
Stacks Image 186
Stacks Image 190